




Development Land in Building Plot Adjacent To Glentworth Road for Sale - £165,000
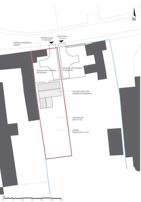
We are pleased to offer for sale this residential building plot which has outlined consent for development of one residential dwelling, with all matters reserved. The building plot is situated in a pleasant village position within the village of Kexby, which is located approximately 5 miles South...
Development Land in Building Plot Adjacent To Glentworth Road for Sale - £165,000
Description
We are pleased to offer for sale this residential building plot which has outlined consent for development of one residential dwelling, with all matters reserved. The building plot is situated in a pleasant village position within the village of Kexby, which is located approximately 5 miles South...
Contact Agent
Smart Picks — Professionals Relevant to This Land
Based on this property's key features, here are the specialists you may want to consult as part of your due diligence: land agents, rural solicitors, environmental consultants, planning consultants and rics surveyors.

Land Agents
Essential for navigating the land market, finding buyers, and securing the best price.

Rural Solicitors
Significant investment (£165K+) requires legal expertise for conveyancing, title checks, and transaction security.

Environmental Consultants
Environmental factors identified - specialist needed for habitat surveys and compliance.

Planning Consultants
Planning-sensitive site needs expert guidance for applications and development strategy.

RICS Surveyors
Prime or productive land requires professional valuation to ensure fair market value.
Location
Building Plot Adjacent To Glentworth Road